Sign up to get new listings emailed daily! JOIN SIGN IN
Russell Cox
Relocation Director
REALTOR®
Cell: (254) 717-6447
Facebook Icon LinkedIn Icon Pinterest Icon Instagram Icon Twitter Icon VCard Icon 
Refine Search

343 Private Road 7327, Emory, TX 75440

$755,000
  • 343 Private Road 7327, Emory, TX 75440 Main Photo

33 Total Photos [Click to View All]

Active
BEDS3 BATHS3 full 1 partial SQUARE FEET2,153 MLS#20325699
STATUSActive PROPERTY TYPEResidential - Single Family SUBDIVISIONSerenity Point SCHOOLRains ISD

Property Description

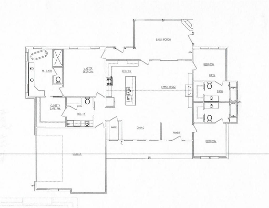
New Lake Fork Subdivision Serenity Point!! 3233 Square foot under roof! Proposed new construction waterfront custom built home of over 2150 sq ft of heated & cooled square waterfront living on a private cul de sac lot with over an acre of fabulousness!! This home features front & back porches, attached two car garage, walk in pantry, Open living dining kitchen space, spacious primary suite with split bedroom plan, two guest bedrooms each with ensuite bathrooms & walk in closets all on Lake Fork WaterFront with Fantastic access & views!! More lots & floor plans available. All floor plans are customizable! Paved road, gated entrance coming soon! Sellers own L&L Builders and build Custom Homes.

343 Private Road 7327 | MLS# 20325699

This single family home located at 343 Private Road 7327, Emory, TX 75440 is currently listed for sale with an asking price of $755,000. This property was built in 2026 and has 3 bedrooms and 3 full and 1 partial baths with 2153 sq. ft. Private Road 7327 is located in the Serenity Point subdivision within the Rains ISD school district. Search Serenity Point real estate on www.254sale.com today.

Property Features

Property Type: Residential - Single Family
Cooling: Central Air
Fireplaces: 1
Garage: 2 car attached
Heating: Central
Lot Size: 1.32 Acres
Year Built: 2026

Amenities

Decorative Lighting
Dry Bar
Kitchen Island
Open Floorplan
Pantry
Walk-In Closet(s)

Feature Descriptions

Appliances: Dishwasher
Body of Water: Fork
Days on Site: 1077
Fireplace: Living Room
Lot: Cul-De-Sac, Waterfront
Parcel#: tbd
Parking: Garage Single Door, Garage Faces Side
Parking Notes: Garage Single Door, Garage Faces Side
Utilities: Aerobic Septic, Asphalt
Water Features: Lake Front

Room Sizes

Living Room: 1.00 x 1.00 Level - 1
Bedroom-Primary: 1.00 x 1.00 Level - 1

Local Schools

Elementary School: Rains
School District: Rains ISD

Listed By / Shown By

Listed By

Agency Name: Dodd Realty
Agency Contact: 903-348-6060
Agent Name: Jana Dodd

agent picture

Shown By

Agent Name: Russell Cox
Agent Phone: Cell: (254) 717-6447
Agency Title: Kelly, Realtors

IDX logo

Estimate Your Payment

Estimated Payment

$ 1,900.51 per month $1,680.30 Principal & Interest $0.00 Property Tax (data not provided by mls) $220.21 Homeowner's Insurance

Change Payment Information

%
years/fixed
yearly
yearly (est.)
(Payments are an estimate and may vary by lender)
Disclaimer: All information deemed reliable but not guaranteed. All properties are subject to prior sale, change or withdrawal. Neither listing broker(s) or information provider(s) shall be responsible for any typographical errors, misinformation, misprints and shall be held totally harmless. Listing(s) information is provided for consumers personal, non-commercial use and may not be used for any purpose other than to identify prospective properties consumers may be interested in purchasing. Information on this site was last updated 04/21/2026. The listing information on this page last changed on 04/21/2026. The data relating to real estate for sale on this website comes in part from the Internet Data Exchange program of Delta Media Group MLS (last updated Tue 04/21/2026 12:01:07 AM EST) or NTREIS (last updated Mon 04/20/2026 11:48:54 PM EST) or SABOR MLS (last updated Mon 04/20/2026 11:52:26 PM EST) or CTXMLS (last updated Mon 04/20/2026 11:34:26 PM EST). Real estate listings held by brokerage firms other than Kelly, Realtors may be marked with the Internet Data Exchange logo and detailed information about those properties will include the name of the listing broker(s) when required by the MLS. All rights reserved.

ntreis logoThe data relating to real estate for sale on this web site comes in part from the IDX of the Multiple Listing Service of NTREIS. The data on this site may not be reproduced or redistributed and is only for those individuals viewing this web site. Real estate listings held by brokerage firms other than the brokers/agents with their own information using this site are marked with the NTREIS thumbnail logo and detailed information about them includes the name of the listing broker(s).

Privacy Policy / DMCA Notice / ADA Accessibility


Agent License Information: 0507004

Login to My Homefinder

Pixel