Sign up to get new listings emailed daily! JOIN SIGN IN
Russell Cox
Relocation Director
REALTOR®
Cell: (254) 717-6447
Facebook Icon LinkedIn Icon Pinterest Icon Instagram Icon Twitter Icon VCard Icon 
Refine Search

5801 Rushing River Way, McKinney, TX 75071

$426,990
  • 5801 Rushing River Way, McKinney, TX 75071 Main Photo

25 Total Photos [Click to View All]

New to the Market Active
BEDS5 BATHS3 full SQUARE FEET3,122 MLS#21200581
STATUSActive PROPERTY TYPEResidential - Single Family SUBDIVISIONEastridge SCHOOLMcKinney ISD

Property Description

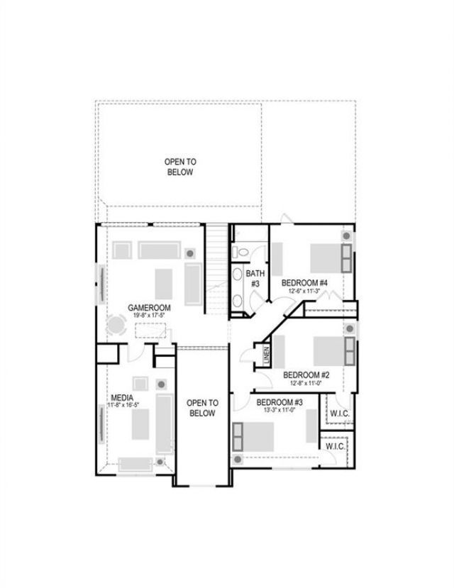
MLS# 21200581 - Built by Trophy Signature Homes - Apr 2026 completion! ~ The Winters plan is tailored to fulfill your requirements currently and for the long term. With five bedrooms, everyone enjoys their own space, accompanied by three bathrooms for added convenience. Impress your guests as you entertain at the central island in the kitchen, seamlessly flowing into the breakfast nook and family room. Meanwhile, guests can enjoy their own entertainment in the game room and media room. The primary suite boasts an outstanding walk-in closet for added luxury!

5801 Rushing River Way | MLS# 21200581

This single family home located at 5801 Rushing River Way, McKinney, TX 75071 is currently listed for sale with an asking price of $426,990. This property was built in 2025 and has 5 bedrooms and 3 full baths with 3122 sq. ft. Rushing River Way is located in the Eastridge subdivision within the McKinney ISD school district. Search Eastridge real estate on www.254sale.com today.

Property Features

Property Type: Residential - Single Family
Cooling: Ceiling Fan(s), Central Air
Garage: 2
Heating: Central
Home Style: Contemporary/Modern, Craftsman
Lot Size: 0.13 Acres
Roof Type: Composition
Year Built: 2025

Amenities

Cable TV Available
High Speed Internet Available
Open Floorplan
Pantry
Walk-In Closet(s)
Rain Gutters
Lighting
Private Yard

Feature Descriptions

Appliances: Dishwasher, Disposal, Microwave, Tankless Water Heater
Community Features: Club House, Community Pool, Fitness Center, Greenbelt, Jogging Path/Bike Path, Park, Playground, Sidewalks
Exterior: Brick, Rock/Stone, Siding
Fencing: Back Yard, Wood
Flooring: Carpet, Luxury Vinyl Plank, Tile
Green Features: Appliances, HVAC, Insulation, Lighting, Low Flow Commode, Mechanical Fresh Air, Rain / Freeze Sensors, Thermostat, Waterheater, Windows
HOA Fee: 815/ Annually
Laundry: Electric Dryer Hookup, Utility Room, Full Size W/D Area, Washer Hookup
Lot Dimensions: 50x115
Parcel#: 5801 Rushing River
Parking: Garage Door Opener, Garage Faces Front, Garage Single Door
Parking Notes: Garage Door Opener, Garage Faces Front, Garage Singl
Swimming Pool: Yes
Utilities: City Sewer, City Water, Community Mailbox, Curbs, Sidewalk

Local Schools

Elementary School: Webb
School District: McKinney ISD

Listed By / Shown By

Listed By

Agency Name: HomesUSA.com
Agency Contact: 888-872-6006
Agent Name: Ben Caballero

agent picture

Shown By

Agent Name: Russell Cox
Agent Phone: Cell: (254) 717-6447
Agency Title: Kelly, Realtors

IDX logo

Estimate Your Payment

Estimated Payment

$ 1,074.83 per month $950.29 Principal & Interest $0.00 Property Tax (data not provided by mls) $124.54 Homeowner's Insurance

Change Payment Information

%
years/fixed
yearly
yearly (est.)
(Payments are an estimate and may vary by lender)
Disclaimer: All information deemed reliable but not guaranteed. All properties are subject to prior sale, change or withdrawal. Neither listing broker(s) or information provider(s) shall be responsible for any typographical errors, misinformation, misprints and shall be held totally harmless. Listing(s) information is provided for consumers personal, non-commercial use and may not be used for any purpose other than to identify prospective properties consumers may be interested in purchasing. Information on this site was last updated 03/06/2026. The listing information on this page last changed on 03/06/2026. The data relating to real estate for sale on this website comes in part from the Internet Data Exchange program of Delta Media Group MLS (last updated Fri 03/06/2026 12:15:15 AM EST) or NTREIS (last updated Thu 03/05/2026 11:49:04 PM EST) or SABOR MLS (last updated Thu 03/05/2026 11:52:56 PM EST) or CTXMLS (last updated Thu 03/05/2026 11:34:32 PM EST). Real estate listings held by brokerage firms other than Kelly, Realtors may be marked with the Internet Data Exchange logo and detailed information about those properties will include the name of the listing broker(s) when required by the MLS. All rights reserved.

ntreis logoThe data relating to real estate for sale on this web site comes in part from the IDX of the Multiple Listing Service of NTREIS. The data on this site may not be reproduced or redistributed and is only for those individuals viewing this web site. Real estate listings held by brokerage firms other than the brokers/agents with their own information using this site are marked with the NTREIS thumbnail logo and detailed information about them includes the name of the listing broker(s).

Privacy Policy / DMCA Notice / ADA Accessibility


Agent License Information: 0507004

Login to My Homefinder

Pixel